
【产品用途】
适用介质为:水、油品、蒸汽、酸性介质等。
【产品标准】
|
设计与制造 |
结构长度 |
压力-温度等级 |
连接法兰 |
试验与检验 |
|
GB12236 |
GB12221 |
GB9131 |
JB/T74-94 |
JB/T9092-1999 |
【压力试验】
|
称压力PN(MPa) |
试验压力(MPa) |
适用温度(℃) |
适用介质 |
||||
|
强度试验 |
密封试验 |
WCB |
Cr5Mo |
1Cr18Ni12Mo2Ti |
1Cr18Ni9Ti |
||
|
1.6 |
2.4 |
1.8 |
≤425 |
≤550 |
≤220 |
≤200 |
水、油品、蒸汽、酸性介质 |
|
2.5 |
3.8 |
2.8 |
|||||
|
4 |
6 |
4.4 |
|||||
|
6.4 |
9.6 |
7.1 |
|||||
|
10 |
15 |
11 |
- |
||||
|
16 |
24 |
17.6 |
|||||
|
25 |
37.5 |
27.5 |
|||||
【产品主要零件材料及性能】
|
零件名称 |
材料编号 |
|||
|
阀 体 |
WCB |
ZGCr5Mo |
ZG1Cr18Ni9Ti |
ZG1Cr18Ni12Mo2Ti |
|
阀 盖 |
WCB |
ZGCr5Mo |
ZG1Cr18Ni9Ti |
ZG1Cr18Ni12Mo2Ti |
|
阀 瓣 |
WCB |
ZGCr5Mo |
ZG1Cr18Ni9Ti |
ZG1Cr18Ni12Mo2Ti |
|
摇 杆 |
WCB |
ZGCr5Mo |
ZG1Cr18Ni9Ti |
ZG1Cr18Ni12Mo2Ti |
|
阀 座 |
25 |
1Cr18Ni9Ti |
1Cr18Ni9Ti |
1Cr18Ni12Mo2Ti |
|
销 轴 |
1Cr17Ni2 |
1Cr18Ni9Ti |
1Cr18Ni12Mo2Ti |
|
|
密封环、垫片 |
包覆垫 |
1Cr18Ni9Ti |
1Cr18Ni12Mo2Ti |
|
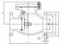
【产品主要技术尺寸】
|
公称压力 |
公称直径 |
主要外形尺寸及连接尺寸(mm) |
重量 |
|||||||
|
L |
D |
D1 |
D2 |
b-f |
z-d |
D3 |
H |
|||
|
1.6 |
25 |
160 |
115 |
85 |
65 |
16-2 |
4--14 |
140 |
130 |
14 |
|
32 |
180 |
135 |
100 |
78 |
16-2 |
4--18 |
150 |
140 |
16 |
|
|
40 |
200 |
145 |
110 |
85 |
16-2 |
4--18 |
160 |
150 |
18 |
|
|
50 |
230 |
160 |
125 |
100 |
16-2 |
4--18 |
185 |
160 |
22 |
|
|
65 |
290 |
180 |
145 |
120 |
18-3 |
4--18 |
215 |
177 |
26 |
|
|
80 |
310 |
195 |
160 |
135 |
20-3 |
8-18 |
235 |
187 |
33 |
|
|
100 |
3540 |
215 |
180 |
155 |
20-3 |
8-18 |
255 |
202 |
39 |
|
|
125 |
400 |
245 |
210 |
185 |
22-3 |
8-18 |
285 |
227 |
57 |
|
|
150 |
480 |
280 |
240 |
210 |
24--3 |
8-23 |
330 |
263 |
80 |
|
|
200 |
550 |
335 |
295 |
265 |
26-3 |
12-23 |
385 |
293 |
95 |
|
|
250 |
650 |
405 |
355 |
320 |
30-3 |
12-25 |
455 |
330 |
175 |
|
|
300 |
750 |
460 |
410 |
375 |
30-4 |
12-25 |
515 |
382 |
260 |
|
|
350 |
850 |
520 |
470 |
435 |
34--3 |
16-25 |
545 |
430 |
360 |
|
|
400 |
950 |
580 |
525 |
485 |
36-4 |
16-30 |
600 |
480 |
496 |
|
|
500 |
1150 |
705 |
650 |
608 |
44--4 |
20-34 |
730 |
560 |
588 |
|