推荐产品

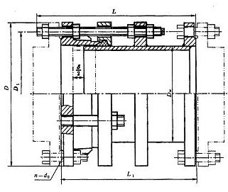
VSSJAFC(CC2F)型可拆式双法兰松套传力接头

2018-02-07 13:16:00 来源:本站 浏览:10323



序号

名称

数量

材料

1

本体

1

QT400-15、Q235A、ZG230-450、20

2

密封圈

1

NBR

3

压盖

1

QT400-15、Q235A、ZG230-450、20

4

短管法兰

1

Q235A、20、16Mn

5

螺柱

n

Q235A、35、1Cr18Ni9Ti

6

螺母

5n

Q235A、20、1Cr18Ni9Ti

安装数据表: 单位:mm


公称通径
DN

管子外径Dw

外形尺寸

法 兰 连 接 尺 寸

L

△L

0.6MPa

1.0MPa

D

D1

n-Th

b

D

D1

n-Th

b

65

76

400

40

160

130

4-M12

16

185

145

4-M16

20

80

89

190

150

4-M16

18

200

160

8-M16

22

100

114

210

170

220

180

24

125

140

240

200

8-M16

20

250

210

26

150

168

265

225

285

240

8-M20

200

219

320

280

22

340

295

28

250

273

375

335

12-M16

24

395

350

12-M20

300

325

420

50

440

395

12-M20

24

445

400

12-M20

28

350

377

490

445

26

505

460

16-M20

30

400

426

540

495

16-M20

28

565

515

16-M24

32

450

480

595

550

615

565

20-M24

32

500

530

645

600

20-M20

30

670

620

34

600

630

440

755

705

20-M24

780

725

20-M27

36

700

720

860

810

24-M24

32

895

840

24-M27

40

800

820

600

60

975

920

24-M27

34

1015

950

24-M30

44

900

920

1075

1020

24-M27

36

1115

1050

28-M30

46

1000

1020

1175

1120

28-M27

1230

1160

28-M33

50

1200

1220

650

1405

1340

32-M30

40

1455

1380

32-M36

56

1400

1420

1630

1560

36-M33

44

1675

1590

36-M39

62

1600

1620

670

1830

1760

40-M33

48

1915

1820

40-M4

68

1800

1820

2045

1970

44-M36

50

2115

2020

44-M45

70

2000

2020

700

2265

2180

48-M39

54

2325

2230

48-M45

74


安装简要说明:VSSJAFC(CC2F)型可拆式双法兰传力接头适用于两边均与法兰连接的管路中,安装可拆式双法兰传力接头时调节产品两端与法兰的安装长度,对角依次均匀拧紧压盖螺栓,使其成为一个整体,并有一定的位移量,方便安装维修时,根据现场尺寸进行调整。可拆式双法兰传力接头在工作时可以把轴向推力传递至正个管道。




下一篇:KXT-A单球橡胶接头